OVERVIEW
On a larger than average plot with open fields at the rear, this end terraced house is perfect for growing families or first time buyers. The well balanced accommodation has a light, bright dual aspect lounge, a dining area with access to the rear garden and a modern kitchen. On the first floor are three good sized bedrooms and an updated bathroom. Storage cupboards have been retained on both the ground and first floor - invaluable for modern family living and there is a large shed and summerhouse in the garden, both included in the sale. The outside spaces are ideal for pets and children with space for play and recreation and may offer scope, subject to planning, to extend at the side. Burneside offers a range of amenities including primary school, shop, church, bowling green and tennis court, cricket pitch and club and a pub. There are good transport links via road, bus and rail. Available with no onward chain. Subject to a Local Occupancy Clause.
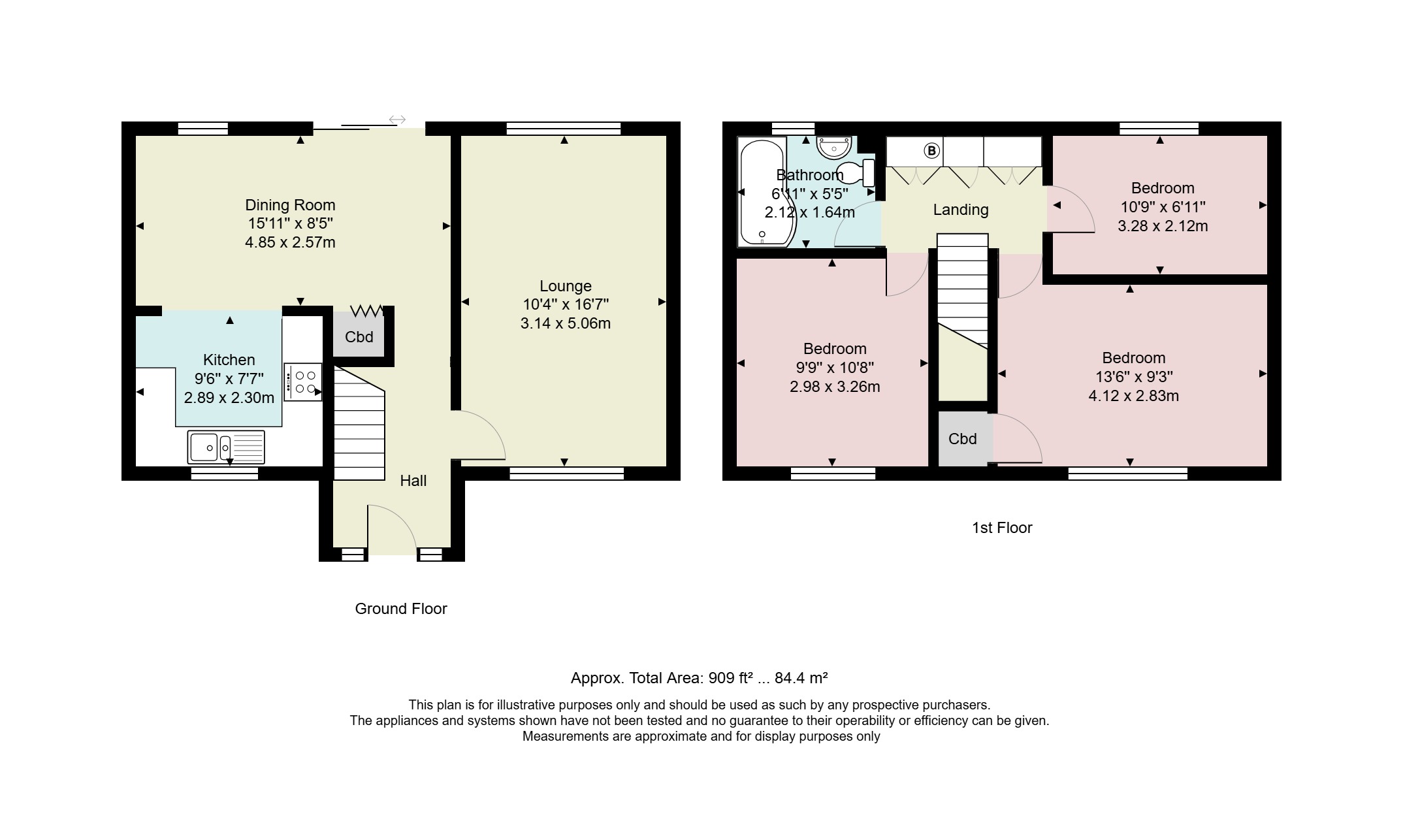
ACCOMMODATION
The approach to the property is over a communal green space and the gated front garden. A glazed door leads into:
HALL
Contemporary pale grey laminate style flooring runs through the ground floor uniting the spaces. There is a ceiling light, radiator and hooks for coats. Stairs lead to the first floor.
LOUNGE
10' 4" x 16' 7" (3.14m x 5.06m)
Dual aspect windows ensure the lounge is light and bright and there are pleasant views over the rear garden towards open fields. White fire surround with electric flame effect stove, a radiator and downlights.
DINING ROOM
15' 11" x 8' 5" (4.85m x 2.57m)
A lovely space for family dining with sliding patio doors to the rear garden and a double glazed window. There is open access to the kitchen, downlights, a radiator and useful understairs storage with plumbing for a washing machine.
KITCHEN
9' 6" x 7' 7" (2.89m x 2.30m)
A double glazed window overlooks the front garden and communal green. Fitted with cream shaker style base and wall units, wood block effect worktops, tiled splashbacks and a ceramic one and a half bowl sink and drainer. There is an electric hob with hood above and oven beneath, an integrated dishwasher, slimline wine fridge and space for an American style fridge freezer. Under unit lighting and downlights.
LANDING
Excellent built-in storage comprising two double and one single cupboards, one of which houses the boiler. Ceiling light and access to the loft.
BEDROOM
13' 6" x 9' 3" (4.12m x 2.83m)
A double glazed window overlooks the green and tree at the front. Built-in over stairs cupboard, downlights and a radiator.
BEDROOM
9' 9" x 10' 8" (2.98m x 3.26m)
A second double bedroom with a double glazed window facing the front aspect, a radiator and downlights.
BEDROOM
10' 9" x 6' 11" (3.28m x 2.12m)
The double glazed window has a lovely view over the garden and fields towards distant hills. Ceiling light and a radiator.
BATHROOM
6' 11" x 5' 5" (2.12m x 1.64m)
Frosted double glazed window to the rear elevation. Fully tiled, the bathroom is fitted with a WC, vanity hand basin with cupboard beneath and a P-shaped shower bath with curved screen, fixed head and riser shower sprays. Downlights, extractor, modern chrome heated towel rail and an illuminated mirror.
EXTERNAL
The lawned front garden is enclosed by low walling and there is gated access to the rear garden at the side. Also fully enclosed, the rear garden is an excellent size with space for play, recreation and produce if required. There is a good sized shed and summerhouse - both to stay plus external lighting and a tap. The side/rear garden may offer scope to extend, subject to planning.
DIRECTIONS
Leaving Kendal on Burneside Road, proceed past Carus Green Golf Club into countryside and then into Burneside Village. Pass the primary school on the left and then turn right (by the shop) onto New Road. Continue over the bridge, turning right onto Hall Park. Follow round to the left following the number indicators on the right hand side. Number 30 is located to the left hand side of the cul de sac.
what3words///bowls.bitter.about
GENERAL INFORMATION
Services: Mains Gas, Electric, Drainage and Water
Tenure: Freehold. Subject to a Local Occupancy Clause requiring purchasers to have lived or worked within Cumbria for the preceding 3 years.
Council Tax Band: B
EPC Grading: D
- Ref: KEN250308
- Type: End of Terrace House
- Availability: For Sale
- Bedrooms: 3
- Bathrooms: 1
- Reception Rooms: 2
- Tenure: Freehold
Hall Park, Burneside, Kendal, Cumbria, LA9 6QF
- Excellent family home
- Good village location with amenities close by
- Lounge
- Dining room with access to garden
- Modern kitchen and bathroom
- Three bedrooms - two good doubles
- Generous plot front and rear
- Local Occupancy Applies
Kendal Office
100 Highgate, Kendal, Cumbria, LA9 4HE
Sales Tel 01539 725582
Sales Email kendalproperty@milnemoser.co.uk
Want to know more?
Request a callback from our Kendal office about this property.